会员登录 免费注册

搜索

240㎡简约样板间 | 引领都市风尚

[复制链接]
柒壹捌 发表于 2018-12-13 16:43:09 | 显示全部楼层 |阅读模式
柒壹捌
2018-12-13 16:43:09 2406 0 看全部
优雅气质  都市风尚
以洞彻时代的视野实现建筑的艺术脉络,承续优雅,引领都市风尚。

b9fea67384edbf03742faee672f1e3e2.jpg


5302443781bc47140404114fb75d0caf.jpg

空间处处散逸出雅致平和而富有内涵的气韵,于现代中彰显着富于生机的平衡。

c324a312e451fe46f83ec054adea4262.jpg


385df50a1c44514557b7b8d52e53416e.jpg


a2a07729554c1438797e95e3aece0413.jpg

客厅
简约现代的空间线条勾勒出轻缓的文化氛围,雨花灰色的大理石地板与白色搭配,让高级感和清透感同时凝炼表达。

d240ac3e2a42c75f614eeb0de5937731.jpg


4ce149803096f5807dea3eb391852c44.jpg


f8fc4aebb45a7fbc9874a31565bee321.jpg

用餐区设计清雅现代,米白色的背景墙以简化的护墙板包裹,左右对称的极简线框,正置中央的黑边镜框。

b1ef16728298856485fafed3d8ee9a6d.jpg

餐厅
一组水晶造型飞马侍伴左右,共同营造出用餐的仪式美感,现代风的悠然轻灵和欧式的优雅美学于此共同发声。


51377bb61f1c61ce4e20412403d5384a.jpg

过厅
在整体明亮简约的浅色大空间中,过厅处一面棕色原木墙超脱出来,赋予了空间朗朗气度之美。

7b5a75bbda2c77f49b254f8e3d5de783.jpg


b26b809fbf938726cbc7d83fcd85a8e6.jpg


57032998302f35c7ecc79ce2533f4a3f.jpg


5f1c1f4921146c56a7f79f5f4796ab33.jpg

主卧
主卧设计温馨柔和,简洁的空间承接着煦和的自然光线,清浅的米色与白色交织,如絮般的温柔,如和风般的轻软,似乎具有抚慰人心的治愈效果。

26bffcaf5f0335b7d43538bf50820f6c.jpg


4ceabc3b6a8329ea771d651c1a5bf8cc.jpg

设计关照老人的深度交流与更优质的睡眠,整体环境清爽且稳重,圆形黑白大理石艺术装饰画与灰色地毯上的白色圆点花纹互相呼应。

2e2d8a1ced56567a1c167e55468a0110.jpg

老人房
中性偏柔和的空间中,一抹深幽的蓝色具有平衡的作用,安静又宁谧。

1679c341fe76712955950b4af6c33b3f.jpg


6f20a207c4ddfd4de8181fb597676727.jpg

书房设计简约高雅、舒心别致。黑漆书柜铺满整面墙,典雅大气,不经意间释放出理性化的气场与高贵的气息。

b4bf641738c3eca452a938865439cc41.jpg

书房
几何纹路的灰色羊毛地毯,带有一丝高贵的英伦气质,作为过渡色让空间韵律连贯起来。

7010f84f99a4bc9f371582f44d1d7c1d.jpg

女孩房
整个空间弥散着清安、快乐的气息。充满艺术气质的芭蕾舞元素装点,给人带来一份直抵心灵的美好。
ff1e70c7a7dfcc90f9514f6267d2de41.jpg
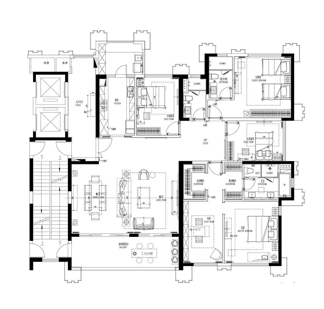
△ 平面图

万通网-有你才会更精彩
  • 您可能感兴趣
您需要登录后才可以回帖 登录 | 免费注册

本版积分规则 返回列表

查看:2406 | 回复:0

手机APP

官方微博

官方微信

Archiver| 手机版| 小黑屋| 万通网
客服电话:19170818817 公司地址:江西省南昌市青云谱区南京路168号 ( 赣ICP备15008369号 ) 158638271@qq.com
QQ|Powered by Discuz! X3.5 © 2001-2025 Discuz! Team.
快速回复 返回顶部 返回列表